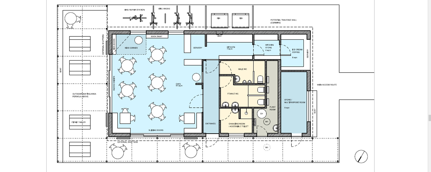
What could this building become? How could we use it in future? We’ve appointed an architect, and she has generated some intitial proposals.

The building would need new windows and entrances, and potentially a pergola around the outside. There would be areas for sitting inside and outside, and a variety of possible features.

What would you like to see?
